Destacados
Proyectos
Equipo
Premios y publicaciones
Contacto
Close
Primary Navigation
Destacados
Proyectos
Equipo
Premios y publicaciones
Contacto
Destacados
Reformas y rehabilitación
Proyecto
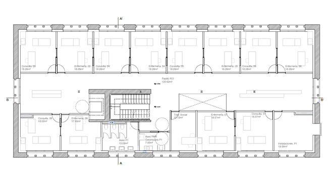
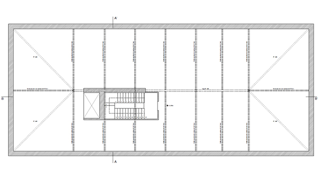
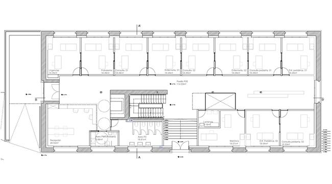
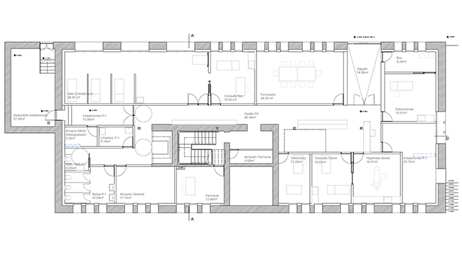
Rehabilitación del Centro de Salud Plaza de Argel (Cáceres)
Cliente final
Servicio Extremeño de Salud
Situación
Cáceres
Fecha
2025
Superficie
2.115,96 m²c
Presupuesto
1.125.445,14 €
Ficha
Cargar más
Cargando más...
Has llegado al final de la lista